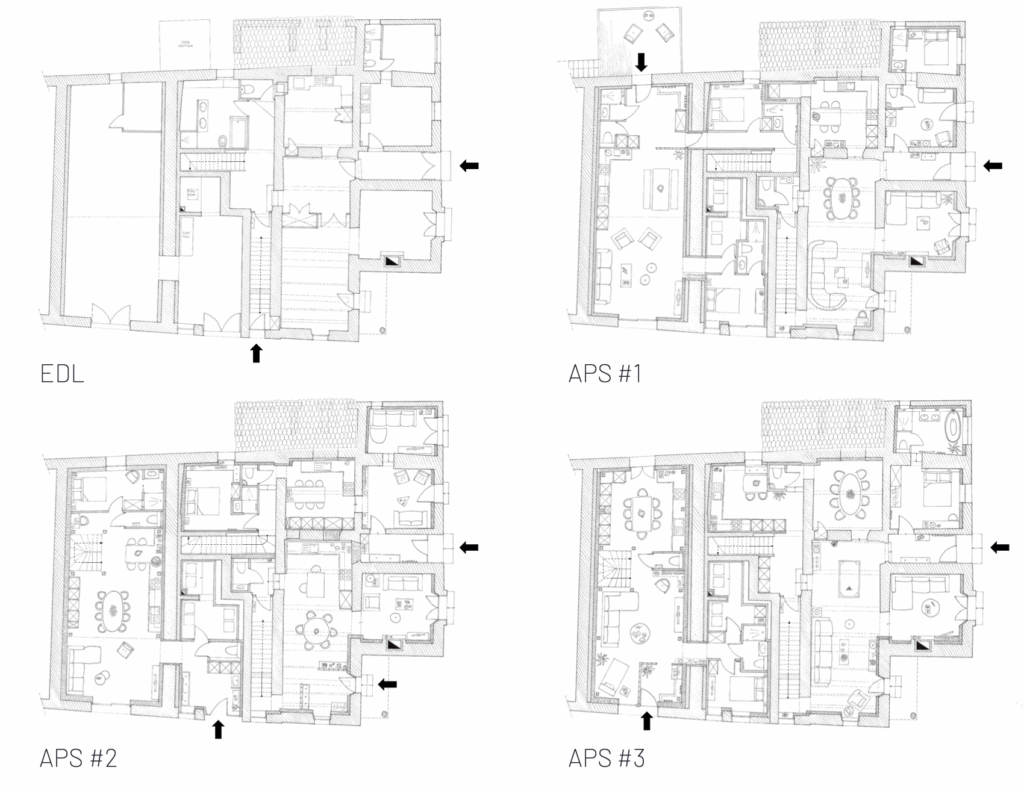
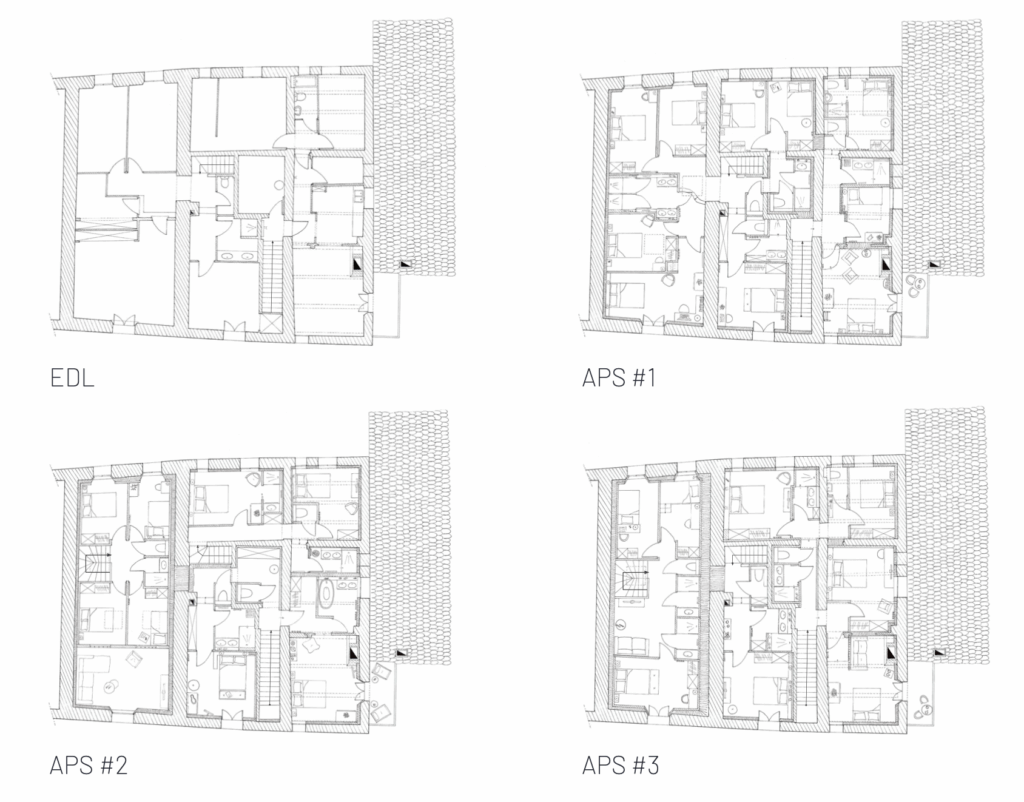
Rénovation complète d’une bâtisse de 250m2 au sol, datant du XVIIIème siècle :
Le domaine de La Vernède est un établissement combinant des activités agricoles et équestres. Parmi celles-ci, la production de vin de terroir, l’accueil de chevaux en pension et l’organisation d’entrainements et de rencontres pour la pratique du polo. Le projet concerne la rénovation haut de gamme d’une des bâtisse principale et il visera à mettre en valeur l’identité du lieu et son histoire. L’enjeu principal réside ici dans la différenciation subtile de deux univers : proposer d’une part un accueil pour les joueurs de polo propriétaires des chevaux, et d’autre part pour les palefreniers saisonniers spécialisés.
RDC /

- Nouvel aménagement des espaces
- Déplacements et ajouts de pièces d’eau, cuisines et salles de bain
- Ouvertures de murs porteurs
- Créations d’escalier
- Transformation du système de chauffage, d’eau chaude et d’assainissement
- Ajout d’une isolation thermique et phonique
- Rénovation de la toiture et des menuiseries
- Restauration de la façade pour retrouver l’aspect d’origine en pierre apparente
ÉTAGE /
